Scandi Granny Flat ~ Greenland 67m²

Greenland 67m²
Category: Granny Flat
Typology: Residential Build
Bedroom: 2
Bathrooms: 1
Total Size: 67m2

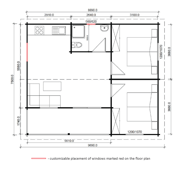
Greenland Floor Plan
The second bedroom may be used for hobbies like arts and crafts or as an office.
Greenland is perfect for a holiday property, granny flat or a rental room. Pre-cut flat-packed kits come conveniently on pallets and a building may be assembled in 10 days saving you money and time in the building process.
Natural timber and double glazing will provide comfort and a piece of mind for healthy and sustainably-minded people.
- Set of drawings including footings plan and engineering for the building
- Structure with external & internal walls, kiln-dried laminated 120mm Nordic Spruce
- Structural tie-down system - 15 steel rods Roof structure 6 load bearing laminated rafters thickness 60mm, h = 140mm
- 19mm T&G ceiling boards
- Ceiling trimmings Fascia boards 4 laminated timber posts 115x115mm with adjustable legs
- Timber covers for all external corner nibs
- External Double-glazed uPVC doors and windows, top quality REHAU profile, white colour
- 1 External tilt&slide or French doors (1900 x 2110mm, safety DG 4/16/4mm)
- 3 tilt&turn window (1200 x 1070mm, DG 4/16/4mm)
- 1 tilt&turn window (550 x 610mm, safety DG 4/16/4mm), customizable placement of one 1200 x 1070mm, 550 x 610mm windows and one internal door, marked red on the floor plan
- Timber architraves and fitted fly screens for all windows 2 internal timber doors 9 pre-drilled holes for electricity
- All hardware Drawings for assembly with all boards marked
Flexible options are sourced locally and can be ordered from our Authorized supplier, your local builder. The builder will customize the options to suit your taste and budget.